JAVNI NATJEČAJ za davanje u zakup poslovno-proizvodnih prostora/inkubacijskih prostora u objektu Modularnog drvno-tehnološkog inkubatora Ivanić-Grad (MDTI)
Na temelju članka 12. do članka 17. Odluke o zakupu poslovnih prostora i korištenju ostalih prostora u vlasništvu Grada Ivanić-Grada (Službeni glasnik, broj 03/19, 03/20 i 04/20) i članka 55. Statuta Grada Ivanić-Grada (Službeni glasnik, broj 02/14, 01/18 i 03/20), Gradonačelnik Grada Ivanić-Grada objavljuje sljedeći
JAVNI NATJEČAJ
za davanje u zakup poslovno-proizvodnih prostora/inkubacijskih prostora u objektu Modularnog drvno-tehnološkog inkubatora Ivanić-Grad (MDTI)
I. PREDMET JAVNOG NATJEČAJA
Predmet Javnog natječaja je davanje u zakup poslovno-proizvodnih prostora/inkubacijskih prostora (u daljnjem tekstu: poslovni prostori) u objektu Modularnog drvno-tehnološkog inkubatora Ivanić-Grad (MDTI) (u daljnjem tekstu: MDTI).
MDTI djeluje s ciljem poticanja općeg gospodarskog rasta i razvoja poduzetništva na području Grada Ivanić-Grada omogućujući subjektima malog gospodarstva korištenje poslovno-proizvodnih i inkubacijskih prostora te specijaliziranih usluga.
Zgrada MDTI nalazi se u Poduzetničkoj zoni Ivanić-Grad na adresi Poduzetnička ulica 11, Ivanić-Grad, a sastoji se od dvije etaže - prizemlja i kata ukupne građevinske bruto površine od 790,70 m2.
Prostor je modularnog tipa kako bi bio maksimalno prilagođen potrebama potencijalnih stanara te postoji mogućnost dodatne pregradnje i prilagodbe u slučaju potrebe za većom, odnosno manjom površinom prostora. U tom su smislu i svi uredski poslovni prostori na katu koncipirani kao otvoreni prostor (open space).
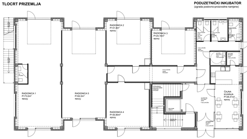
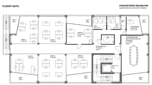
Poslovni prostori koji se daju u zakup prikazani su na tlocrtu te navedeni u tabelarnom prikazu kako slijedi:
A. Tlocrt zgrade


B. Tabelarni prikaz i opis poslovnih prostora
| Redni broj | Etaža zgrade | Oznaka iz tlocrta | Naziv iz tlocrta | Površina (m2) | Broj radnih jedinica | Opremljenost prostora |
| 1. | prizemlje | 1 | Radionica 1 | 73,00 m2 | / | ü zasebni vanjski ulaz ü stražnji kolni ulaz s industrijskim vratima ü industrijski epoksi pod ü zasebno brojilo električne energije ü zasebni sanitarni čvor |
| 2. | prizemlje | 5 | Radionica 5 | 62,00 m2 | / | ü zasebni vanjski ulaz ü stražnji kolni ulaz s industrijskim vratima ü industrijski epoksi pod ü zasebno brojilo električne energije |
| 3. | prizemlje | 2 | Radionica 2 | 31,90 m2 | / | ü unutarnji ulaz ü stražnji kolni ulaz s industrijskim vratima ü industrijski epoksi pod ü zasebno brojilo električne energije |
| 4. | prizemlje | 4 | Radionica 4 | 30,90 m2 | / | ü zasebni vanjski ulaz ü industrijski epoksi pod ü zasebno brojilo električne energije |
| 5. | prizemlje | 3 | Radionica 3 | 24,14 m2 | / | ü unutarnji ulaz ü stražnji kolni ulaz s industrijskim vratima ü industrijski epoksi pod ü zasebno brojilo električne energije |
| 6. | kat | 1 | Ured 1 | 26,70 m2 | 6 | ü Uredska oprema:
ü brza internetska veza ü telefonska linija s telefonskim aparatom |
| 7. | kat | 2 | Ured 2 | 32,00 m2 | 6 | ü Uredska oprema:
ü brza internetska veza ü telefonska linija s telefonskim aparatom |
| 8. | kat | 3 | Ured 3 | 22,80 m2 | 4 | ü Uredska oprema:
ü brza internetska veza ü telefonska linija s telefonskim aparatom |
| 9. | kat | 4 | Ured 4 | 32,00 m2 | 6 | ü Uredska oprema:
ü brza internetska veza ü telefonska linija s telefonskim aparatom |
II. OPĆI UVJETI JAVNOG NATJEČAJA
Pravo zakupa poslovnih prostora imaju svi subjekti malog gospodarstva – mikro, mali i srednji poduzetnici (pravne i fizičke osobe) koji sukladno Zakonu o poticanju razvoja malog gospodarstva samostalno i trajno obavljaju djelatnosti radi ostvarivanja dobiti odnosno dohotka na tržištu.
Poduzetnik početnik je poduzetnik koji je u vrijeme podnošenja ponude za zakup upisan u odgovarajući registar najviše do 3 godine.
Poduzetnici - ponuditelji za zakup poslovnih prostora trebaju ispuniti sljedeće uvjete:
- biti registrirani za obavljanje jedne ili više djelatnosti
- imati podmirene obveze prema proračunu Republike Hrvatske
- imati podmirene obveze prema proračunu Grada Ivanić-Grada
- imati podmirene obveze prema zaposlenicima
- nisu u stečaju ili postupku predstečajne nagodbe, odnosno nisu u postupku likvidacije
- ispunjavati propise o potporama male vrijednosti.
III. CIJENA ZAKUPA POSLOVNIH PROSTORA
Svaki poslovni prostor naveden u tabelarnom prikazu čini samostani predmet zakupa, no ako za to postoji poslovni interes postoji mogućnost spajanja prostora.
Poslovni prostor daje se u zakup na određeno vrijeme, u trajanju od minimalno 2 do maksimalno 3 godina. Nakon isteka maksimalnog vremenskog perioda zakupa od 3 godine Zakupnik može i dalje koristiti Poslovni prostor po punoj cijeni zakupa, ali samo u slučaju ako za navedeni prostor ne postoji interes zakupa od strane novog stanara. Zakupnik ne može poslovni prostor dati u podzakup.
Početni iznos mjesečne zakupnine po m² za poslovni prostor za proizvodne djelatnosti je 30 kn/m2 bez PDV-a. Početni iznos mjesečne zakupnine po m² za uredski poslovni prostor je 40 kn/m2 bez PDV-a.
Zakupnici imaju pravo na subvenciju Grada Ivanić-Grada za iznos zakupa poslovnog prostora kako slijedi:
| Godina zakupa | Zakup | Subvencija |
| 1. godina | 25% pune cijene zakupa | 75% |
| 2. godina | 50% pune cijene zakupa | 50% |
| 3. godina | 75% pune cijene zakupa | 25% |
Uredski poslovni prostori opremljeni su osnovnim uredskim namještajem koji se zakupljuje zajedno s poslovnim prostorom i ulazi u cijenu zakupa, ovisno o predviđenom broju radnih jedinica po pojedinom uredskom prostoru.
Zajednički prostori su hodnici, čajna kuhinja i sanitarni čvorovi.
Osim zakupnine zakupnik plaća troškove korištenja zajedničkih dijelova i uređaja zgrade (grijanje i hlađenje, električna energija, čišćenje, održavanje objekta), razmjerno udjelu zakupljenog prostora prema površini cijele građevine, sukladno iskazanim površinama u tehničkoj dokumentaciji građevine.
Zakupnici mogu koristiti postojeće telefone i internetsku vezu poduzetničkog inkubatora te tada plaćaju razmjerni udio ukupnih mjesečnih troškova ugovorenog paketa telefona i interneta. Ukoliko Zakupnici s tim nisu zadovoljni mogu dogovoriti vlastite pakete s operatorom po želji.
U krugu objekta na raspolaganju je besplatno parkiranje za zaposlenike, poslovne partnere i posjetitelje.
IV. POTPORE MALE VRIJEDNOSTI
Subvencije iz točke III. Javnog natječaja smatraju se potporama male vrijednosti (de minimis potpora) i stoga postoji obveza primjena uvjeta za dodjelu potpore male vrijednosti sukladno važećim pravilima iz Uredbe komisije (EU) br. 1407/2013 od 18. prosinca 2013. godine o primjeni članaka 107. i 108. Ugovora o funkcioniranju Europske unije na de minimis potpore („Službeni list Europske unije“, serija I. br. 325/1 od 24. prosinca 2013. godine) i važećeg Zakona o državnim potporama.
Sukladno odredbama navedenih propisa korisnik je prije dodjele potpore male vrijednosti dužan davatelju potpore dostaviti izjavu o svim potporama male vrijednosti primljenima tijekom tekuće i prethodne dvije fiskalne godine, neovisno o razni davatelja potpore male vrijednosti.
Davatelj potpore male vrijednosti će prilikom dodjele potpore izvijestiti korisnika da mu je dodijeljena potpora male vrijednosti te će voditi evidenciju o dodijeljenim potporama male vrijednosti.
V. JAMČEVINA
Ponuditelj je dužan položiti jamčevinu u iznosu od 1.200,00 kuna u korist žiro-računa Grada Ivanić-Grada, IBAN broj HR4824840081815800006, model HR68, s pozivom na broj 7242 – OIB ponuditelja.
Uplaćena jamčevina se vraća sudionicima natječaja čija ponuda nije prihvaćena, a ponuditelju odnosno zakupniku s kojim je sklopljen Ugovor o zakupu poslovnog prostora uplaćena jamčevina uračunava se u zakupninu.
Ako ponuditelj odustane od dobivenog poslovnog prostora i sklapanja ugovora o zakupu, gubi pravo na povrat jamčevine, a sklapanje ugovora ponudit će se sljedećem najpovoljnijem ponuditelju, po najvišoj ponuđenoj zakupnini, pod uvjetom da ispunjava sve ostale uvjete javnog natječaja. Ukoliko sljedeći najpovoljniji ponuditelj ne prihvati ponudu, za predmetni poslovni prostor ponovit će se postupak javnog natječaja.
VI. DOKUMENTACIJA
Ponuditelji zainteresirani za zakup poslovnih prostora iz točke I. Javnog natječaja koji ispunjavaju uvjete iz točke II. obvezni su dostaviti sljedeću dokumentaciju:
- Ispunjeni obrazac Ponude; (link)
- Potvrda Porezne uprave ili drugog nadležnog tijela kojom se dokazuje da ponuditelj nema nepodmirenih dospjelih obveza prema proračunu Republike Hrvatske (ne starija od 30 dana);
- Potvrda Grada Ivanić-Grada da ponuditelj nema nepodmirenih dospjelih obveza prema Gradu Ivanić-Gradu (ne starija od 30 dana);
- Izvadak iz sudskog ili obrtnog registra (ne stariji od 30 dana);
- Preslika obavijesti Državnog zavoda za statistiku o razvrstavanju poslovnog subjekta prema Nacionalnoj klasifikaciji;
- Posljednji predani godišnji financijski izvještaj (GFI ili drugi odgovarajući dokument o financijskom poslovanju poduzetnika);
- BON-2 ili SOL 2 (podaci o solventnosti) za obrtnike i pravne osobe;
- Skupna izjava; (link)
- Izjava o povezanim osobama (obrazac Povezane osobeMDTI/2020 ); (link)
10. Izjava o korištenim potporama male vrijednosti (obrazac Potpore male vrijednosti MDTI/2020); (link)
11. Potvrda o uplaćenoj jamčevini.
Obrazac Ponude 1., te obrasci Izjava 8., 9. i 10. dostupni su za preuzimanje na odgovarajućim linkovima.
VII. ADRESA I ROK ZA DOSTAVU PONUDA
Ponude se šalju poštom preporučeno u zatvorenoj omotnici, s naznakom: „NE OTVARAJ - Ponuda za zakup poslovnog prostora/MDTI" na adresu Grad Ivanić-Grad, Park hrvatskih branitelja 1, 10 310 Ivanić-Grad ili osobnom predajom u pisarnicu Gradske uprave.
Javni natječaj trajno je otvoren do davanja u zakup svih ponuđenih prostora.
Ponuditelji će imati mogućnost obilaska poslovnih prostora koji se daju u zakup dana 3., 17. i 31. kolovoza, te 7. i 14. rujna 2020. od 9:00 do 11:00 sati.
VIII. EVALUACIJA PONUDA
Povjerenstvo za zakup poslovnog prostora vršit će analizu ponuda dostavljenih na javnom natječaju za zakup svakih 15 dana od dana objave Javnog natječaja i sastaviti Zapisnik.
Najpovoljnijom ponudom smatra se ona ponuda koja je, uz ispunjenje uvjeta iz natječaja, ostvarila najviše bodova.
Ponuditeljima koji spadaju u sljedeće kategorije dodjeljuju se dodatni bodovi:
- poduzetnici početnici (3 boda)
- poduzetnici koji ponude veći iznos zakupnine (1 bod)
- poduzetnici kojima je glavna djelatnost prema NKD 2007 Skupina 16.2 Proizvodnja proizvoda od drva, pluta, slame i pletarskih materijala i Skupina 31.0 Proizvodnja namještaja (2 boda)
- žene poduzetnice (2 boda)
- osobe s invaliditetom poduzetnici (2 boda)
- poduzetnici inovatori (2 boda)
- poduzetnici branitelji (2 boda)
- za poduzetnike koji posluju više od 3 godine (1 bod )
ukoliko u periodu od 6 mjeseci od početka Zakupa planiraju i zaposle minimalno 1 novozaposlenu osobu
U slučaju da ponuditelji imaju isti broj bodova odabire se ponuditelj koji je ponudio veći iznos zakupnine, a u slučaju da su i tu bodovno jednaki primjenjuje se javno nadmetanje iznosa zakupnine.
Ponuditelji su dužni dostaviti odgovarajuće dokaze kao temelj za dodjelu dodatnih bodova. Poduzetnici koji imaju u planu novozaposlenu osobu isto navode u obrascu ponude i dužni su realizirati plan zapošljavanja u periodu od 6 mjeseci od početka Zakupa.
Ponude se ocjenjuju redom zaprimanja potpune dokumentacije prema uvjetima iz ovog Javnog natječaja. Javni natječaj je otvoren do popunjenja poduzetničkog inkubatora odnosno do iskorištenja kapaciteta za Zakup.
U slučaju nepotpune ponude Grad Ivanić-Grad uputit će ponuditelju zahtjev za dopunu. Ponuditelj je dužan dopuniti ponudu u roku od 5 dana od dana primitka zahtjeva za dopunu.
IX. DONOŠENJE ODLUKE
Odluku o izboru donosi Gradonačelnik Grada Ivanić-Grada na prijedlog Povjerenstva za zakup poslovnog prostora.
O donesenoj Odluci o izboru najpovoljnije ponude obavještavaju se svi sudionici natječaja javnom objavom na oglasnoj ploči i mrežnoj stranici Grada Ivanić-Grada.
S izabranim ponuditeljima, sukladno Odluci o izboru najpovoljnije ponude, sklapa se Ugovor o zakupu poslovnog prostora kojim će se regulirati međusobna prava i obveze ugovornih strana.
X. OSTALE INFORMACIJE
Ovaj Javni natječaj objavljuje se na službenoj mrežnoj stranici Grada Ivanić-Grada www.ivanic-grad.hr, oglasnoj ploči Grada Ivanić-Grada, te na mrežnoj stranici Razvojne agencije IGRA http://www.ra-igra.hr/.
Gradonačelnik:
Javor Bojan Leš, dr.vet.med.
Preuzmite dokumente:
- Izjava o korištenim potporama male vrijednosti
- Skupna izjava
- Ponuda za zakup poslovnog prostora
- Izjava o povezanim osobama
- Javni natječaj za zakup