JAVNI NATJEČAJ za odabir upravitelja (operatera) Modularnog drvno-tehnološkog poduzetničkog inkubatora Ivanić-Grad (MDTI)
Status natječaja: Objavljen
Javni natječaj:
KLASA: 025-06/26-01/1
URBROJ: 238-10-03-03/3-26-1
Ivanić-Grad, 10. ožujka 2026.
Na temelju Odluke Gradonačelnika Grada Ivanić-Grada o raspisivanju Javnoga natječaja za odabir upravitelja (operatera) Modularnog drvno-tehnološkog poduzetničkog inkubatora Ivanić-Grad (MDTI) (KLASA: 024-05/26-11/23, URBROJ: 238-10-03-03/3-26-2, od dana 5. ožujka 2026.) raspisuje se
JAVNI NATJEČAJ
za odabir upravitelja (operatera) Modularnog drvno-tehnološkog poduzetničkog inkubatora Ivanić-Grad (MDTI)
I. Raspisuje se Javni natječaj za odabir upravitelja (operatera) Modularnog drvno-tehnološkog poduzetničkog inkubatora Ivanić-Grad (MDTI) (u daljnjem tekstu: poduzetnički inkubator) koji se nalazi u Poduzetničkoj zoni Sjever - Zona 6 u Ivanić-Gradu na razdoblje od jedne (1) godine.
II. Poduzetnički inkubator djeluje s ciljem poticanja općeg gospodarskog rasta i razvoja poduzetništva na području Ivanić-Grada, omogućujući subjektima malog gospodarstva korištenje poslovnih i proizvodnih prostora (inkubacijskih prostora) i specijaliziranih usluga.
Subjekti malog gospodarstva sukladno Zakonu o poticanju razvoja malog gospodarstva (Narodne novine, broj 29/02, 63/07, 53/12, 56/13, 121/16) su mikro, mali i srednji poduzetnici koji samostalno i trajno obavljaju djelatnosti radi ostvarivanja dobiti odnosno dohotka na tržištu.
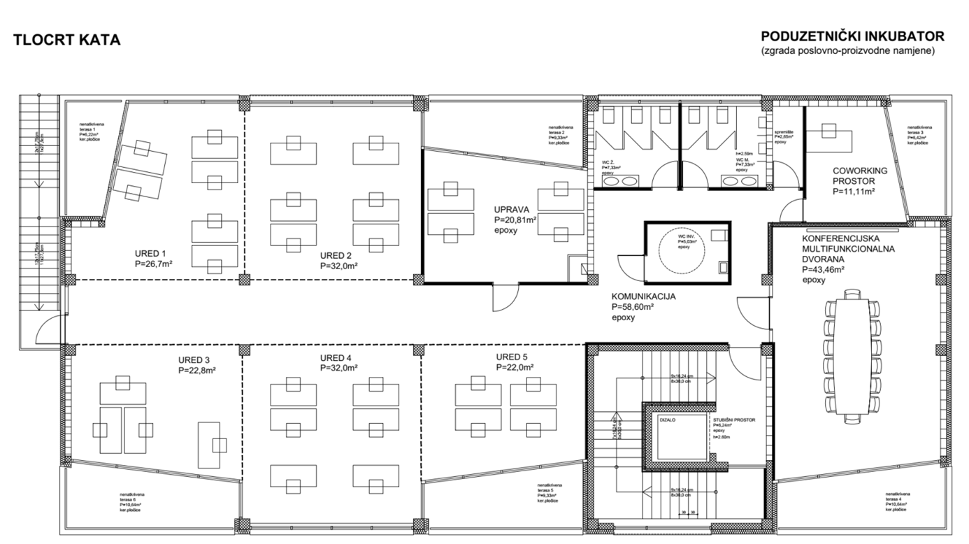
III. Zgrada poduzetničkog inkubatora se nalazi u Poduzetničkoj zoni Sjever - Zona 6 u Ivanić-Gradu, na adresi Poduzetnička ulica 11, 10310 Ivanić-Grad, a sastoji se od dvije etaže - prizemlja i kata ukupne građevinske bruto površine od 790,70 m².
TLOCRT ZGRADE


IV. Odabrani operater je dužan upravljati objektom poduzetničkog inkubatora što osobito uključuje:
- davanje u zakup poslovnih i proizvodnih prostora (inkubacijskih prostora) i naplaćivanje istih,
- davanje na korištenje drugih prostora (konferencijska multifunkcionalna dvorana, co-working prostor) i opreme i naplaćivanje istih,
- pružanje usluga poslovnog savjetovanja i edukacije poduzetnika,
- operativno provođenje mjera za razvoj gospodarstva i poduzetništva na lokalnoj razini, poticanje i povlačenje investicija te iniciranje i realizaciju projekata poticanja gospodarskog razvoja i poduzetništva objedinjavanjem rada poduzetnika, lokalnih i regionalnih poduzetničkih institucija te visokoobrazovnih institucija i centara znanja.
Odabrani operater je dužan osigurati ispunjenje pokazatelja projekta Izgradnja modularnog drvno-tehnološkog poduzetničkog inkubatora u Ivanić-Gradu, sve sukladno Ugovoru o dodjeli bespovratnih sredstava za projekte koji se financiraju iz Europskih strukturnih i investicijskih fondova u financijskom razdoblju 2014.- 2020. KK.03.1.2.01.0051.
V. Operater ne može vršiti preinake poduzetničkog inkubatora bez prethodne pisane suglasnosti vlasnika Grada Ivanić-Grada.
VI. Zakup inkubacijskih prostora i korištenje drugih prostora i opreme operater je ovlašten naplaćivati sukladno odredbama Odluke o zakupu poslovnih prostora i korištenju ostalih prostora u vlasništvu Grada Ivanić-Grada (Službeni glasnik Grada Ivanić-Grada, broj 03/19, 03/20, 04/20).
Prihod od zakupnine i naknade za korištenje drugih prostora i opreme je prihod operatera.
VII. Operater snosi troškove operativnog poslovanja, a vlasnik Grad Ivanić-Grad snosi troškove održavanja infrastrukture i opreme.
VIII. Operater ima pravo jedan (1) ured koristiti za svoje poslovanje, a sve ostale prostore i opremu dati u zakup ili na korištenje kako je navedeno u točki IV. ovoga javnog natječaja.
Operater je dužan vlasniku Gradu Ivanić-Gradu plaćati naknadu za korištenje prostora sukladno odredbama Odluke o zakupu poslovnih prostora i korištenju ostalih prostora u vlasništvu Grada Ivanić-Grada (Službeni glasnik Grada Ivanić-Grada, broj 03/19, 03/20, 04/20).
IX. Operater je dužan upravljati objektom poduzetničkog inkubatora i koristiti se prostorom i opremom pažnjom dobrog gospodara, čuvajući interes vlasnika Grada Ivanić-Grada.
Operater je dužan do 31. prosinca tekuće godine izraditi izvješće o upravljanju poduzetničkim inkubatorom odnosno o ispunjenju pokazatelja projekta te ga dostaviti Gradu Ivanić-Gradu radi analize poslovanja.
X. Za upravljanje objektom poduzetničkog inkubatora Grad Ivanić-Grad je dužan plaćati naknadu za upravljanje mjesečno unazad po ispostavljenom računu operatera.
XI. Gospodarski subjekt budući upravitelj (operater) poduzetničkog inkubatora mora dokazati svoju sposobnost za obavljanje profesionalne djelatnosti sukladno odredbama ovog javnog natječaja.
Operater mora biti upisan u registar poduzetničke infrastrukture i mora imati status poduzetničke potporne institucije sukladno Zakonu o unapređenju poduzetničke infrastrukture (Narodne novine, broj 93/13, 114/13, 41/14, 57/18, 138/21).
XII. Sposobnost za obavljanje profesionalne djelatnosti dokazuje se ispravom o upisu u sudski, obrtni ili drugi odgovarajući registar države sjedišta gospodarskog subjekta odnosno, ako se isprava o upisu u odgovarajući registar ne izdaje u državi sjedišta gospodarskog subjekta, izjavom s potpisom ovjerenim kod nadležnog tijela.
Ispravom odnosno izjavom iz stavka 1. ove točke dokazuje se da gospodarski subjekt ima registriranu djelatnost u vezi s predmetom natječaja, da protiv njega nije pokrenut stečajni postupak, da se ne nalazi u postupku likvidacije odnosno da nije u postupku obustavljanja poslovne djelatnosti.
Isprava odnosno ovjera potpisa na izjavi ne smije biti starija od 3 (tri) mjeseca računajući od dana objave ovoga javnog natječaja.
XIII. Ponuda na natječaj mora sadržavati sljedeće:
- ispunjen potpisan i ovjeren ponudbeni list koji se nalazi u Prilogu I. i sastavni je dio ovog javnog natječaja,
- dokaz o sposobnosti za obavljanje profesionalne djelatnosti,
- dokaz o upisu ponuditelja u registar poduzetničke infrastrukture i statusu poduzetničke potporne institucije,
- potvrdu Porezne uprave o urednom izvršavanju svih dospjelih poreznih obveza i obveza doprinosa za mirovinsko i zdravstveno osiguranje, ne stariju od 30 (trideset) dana od dana objave ovoga javnog natječaja,
- potvrdu Grada Ivanić-Grada da ponuditelj nema dospjelih obveza prema Gradu Ivanić-Gradu,
- poslovni plan upravljanja poduzetničkim inkubatorom za razdoblje od jedne (1) godine.
XIV. Neće se razmatrati:
- nepravovremene i nepotpune ponude,
- ponude ponuditelja koji imaju dospjela dugovanja prema Republici Hrvatskoj ili Gradu Ivanić-Gradu,
- ponude ponuditelja nad kojima je pokrenut postupak stečaja, likvidacije ili obustavljanja poslovne djelatnosti,
- ponude ponuditelja koji nisu registrirani za obavljanje djelatnosti u vezi s predmetom natječaja i koji nemaju status poduzetničke potporne institucije.
XV. Ponuda se dostavlja u pisanom obliku na adresu Grada Ivanić-Grada, Park hrvatskih branitelja 1, 10310 Ivanić-Grad u roku od 8 (osam) dana od dana objave natječaja na oglasnoj ploči i na službenoj mrežnoj stranici Grada Ivanić-Grada, osobno u pisarnici ili poštom preporučeno, u zatvorenoj omotnici s naznakom: „Javni natječaj za odabir upravitelja (operatera) Modularnog drvno-tehnološkog poduzetničkog inkubatora Ivanić-Grad (MDTI) - ne otvaraj“.
XVI. Kriterij odabira ponude je ekonomski najpovoljnija ponuda s najbolje ocjenjenim planom upravljanja poduzetničkim inkubatorom, koja ispunjava sve uvjete iz natječaja.
XVII. Odluka o odabiru najpovoljnije ponude donijet će se u roku od 30 (trideset) dana računajući od dana isteka roka za dostavu ponuda. Svim ponuditeljima dostavit će se odluka o odabiru najpovoljnije ponude.
XVIII. Natječaj će se objaviti na oglasnoj ploči i na službenoj mrežnoj stranici Grada Ivanić-Grada.
XIX. Grad Ivanić-Grad zadržava pravo poništiti natječaj u bilo kojem trenutku prije i nakon isteka roka za dostavu ponuda kao i pravo ne izvršiti odabir najpovoljnijeg ponuditelja, bez preuzimanja odgovornosti naknade eventualne štete bilo kojem od ponuditelja.
XX. Podnošenjem ponude na ovaj javni natječaj ponuditelj je izričito suglasan da Grad Ivanić-Grad može prikupljati, koristiti i dalje obrađivati dostavljene podatke u svrhu provedbe postupka javnog prikupljanja ponuda sukladno propisima o zaštiti osobnih podataka te iste objaviti sukladno članku 10. Zakona o pravu na pristup informacijama (Narodne novine, broj 25/13, 85/15, 69/22).
XXI. Međusobni odnosi Grada Ivanić-Grada i operatera poduzetničkog inkubatora detaljnije će se regulirati ugovorom o povjeravanju poslova upravljanja poduzetničkim inkubatorom.
U slučaju da operater ne ispunjava ugovorom preuzete obveze, Grad Ivanić-Grad može raskinuti ugovor u kojem je slučaju operater dužan predati objekt poduzetničkog inkubatora Gradu Ivanić-Gradu u roku od 30 (trideset) dana od dana zaprimanja izjave o raskidu ugovora.
XXII. Dodatne informacije o ovom natječaju mogu se dobiti u Upravnom odjelu za lokalnu samoupravu, pravne poslove i društvene djelatnosti Grada Ivanić-Grada, Park hrvatskih branitelja 1, 10310 Ivanić-Grad, na broj telefona: +385 1 2831 384 ili na e-mail: livia.grgic.paulic@ivanic-grad.hr.
GRADONAČELNIK:
Javor Bojan Leš, dr.vet.med.